こんにちは!中古マンションリノベで「自分らしい快適な暮らし」を開拓中のMANAMIです♪
お家作りやリフォームの際に「リビングに天井付けの物干しを設置したい!」と考えている方はいらっしゃいませんか??
ランドリールームや室内干し専用スペースの事例はよく見かけますが、リビングの事例はあまり見かけないですよね。あったとしても、置き型や窓枠に固定するものだったり。
ということで!
今回はリビングの天井に物干しを設置した我が家の事例と、使い勝手やメリット・デメリットをお伝えします!
リビングに天井付け物干しを設置した経緯
「世はまさにランドリールーム時代」というくらい、今はランドリールームに室内物干しを付けるのが主流になってきていますよね。
洗濯機で洗った衣類を乾燥機やランドリールームの物干しで乾かして、乾いたらチェストやクローゼットに仕舞う。
めちゃくちゃ洗濯動線が良いので、私もそんな暮らしをしてみたいという憧れはありました。
なのになぜ、リビングに物干しを設置したのか。
それは、
リビングで干したほうが乾きやすそうだったから!!!!!
我が家は猫と暮らしていて、夏と冬はリビングのエアコンをつけっぱなしにするんですよね。
なので、ランドリールームで乾かすよりリビングのほうが乾きやすい。
そして、年中無休で部屋干しするので、毎日置き型の物干しラックを出したり仕舞ったりするのは面倒くさい。
ということで、天井付けタイプの物干しをリビングに設置することにしました!
-150x150.jpg)
ちなみに、乾燥機なしの縦型洗濯機ユーザーです。
森田アルミのKacuを選んだ理由
施工するタイプの室内物干しにも、色々種類がありますよね。
昔からあるものでいえば、Panasonicのホシ姫サマや、川口技研のホスクリーンが有名どころ。
また、最近はウッドワンのランドリーハンガー、toolboxのアイアンハンガーパイプ、TOSOのハンギングバーなども人気の商品だと思います。

めちゃめちゃあって選べないな・・・
そんな中で、我が家が採用したのは森田アルミのKacuです!

森田アルミのKacuは、パイプの丸みを無くした直線的なデザインが特徴の物干しです。
ここは好みが分かれるところだと思いますが、我が家の雰囲気にはKacuが合っていると思ってこちらにしました^^
ただリビングという場所がら「使うときだけ出したい」という人もいると思います。
その場合は、物干し竿の取り外しや昇降ができるタイプ(ホスクリーンやホシ姫サマ)も良いと思います!
-150x150.jpg)
私は面倒臭がりゆえ、取り外しも昇降も絶対にしないと思って常設型の物干しにしたよ
リビングの天井に物干しを設置するメリットとデメリット
多くの人がリビングでの部屋干しを避けていく中、あえて設置したリビング物干し。
結果的にどうだったかというと、
めちゃくちゃ便利だし乾きやすい!
私は設置して良かったと感じています!!!
ただ、設置した場所が良かった可能性もあるので、実際の写真とともに設置場所をご紹介します!
物干しを設置した場所
ではまず、リノベしたての時の写真をお見せします。

左上に見えるのが、室内物干しのKacuです。
よく見るとわかるのですが、
エアコンの正面に設置しています。
別角度から見るとこんな感じ。

一見物干しに見えないので、来客時に100%「これ何?」と聞かれます。

こりゃツッコみたくなるわな。
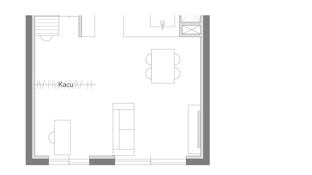
間取りで見るとこんな感じ。

リビング干しのよくあるデメリットとして「洗濯物が邪魔で通りにくい」という点があると思いますが、我が家ではダイニングやソファへの通路部分は避けて設置したので全く邪魔になりません^^
さらに、洗濯物たちに気持ちよく乾いていただくために、付帯設備にもこだわっています。

エアコンだけでなく、サーキュレーターと空気清浄機(除湿機能付き)も設置しているので、その時の温度や湿度に合わせて乾燥方法を変えています。
これには洗濯物たちも悪い気はしないようで、3〜4時間位でカラッと乾いてくれています。

なんか、リビングまるごとランドリールーム化してるね?
-150x150.jpg)
実は、サーキュレーターも空気清浄機もリビングの空気循環のために使っていたもので、それを活用しているだけなんだけどね。乾きやすければヨシ!!
リビング物干しのメリット

続いては、リビングの天井に物干しを設置するメリットについてお伝えします!
①乾きやすい
はじめに、天井付けのリビング物干しを使ってみて感じたのは乾きやすさです!
以前はリビングに折りたたみ型の物干しを置いて干していたのですが、その時は乾くまで6〜8時間ほどかかっていました。
それが、天井付けの物干しにしてから3〜4時間で乾くのです!!!
温かい空気は上に、湿った空気は下に流れるので、高い位置に干すことで乾きやすくなったんだと思います。
加えて、エアコンの風が当たる位置に設置したのでさらに乾きやすくなっているようです。
-150x150.jpg)
1年使ってますが、部屋干しによる生乾き臭は感じたことがありません!
②片付けやすいし、片付けなくてもいい
次に片付けやすさです。
前に住んでいたお家では浴室乾燥機をよく使っていたのですが、浴室に干すと洗濯物の存在を忘れがちなんですよね。
洗濯物のことなんてすっかり忘れて、お風呂に入る時になって思い出す事も多々。
当然そのままじゃお風呂に入れないので、入浴前に洗濯物を片付けるという緊急ミッションが発生するんです。
-150x150.jpg)
急に舞い込む洗濯物の片付けほど面倒なことはないよ
一方、リビング干しの場合は、嫌でも視界に入る。
めちゃくちゃ視界に入るので、
「片付けよ」ってなります!
私のような、視界に入らないと忘れちゃうタイプの人にはおすすめです^^
ただ、疲れて何も出来ない時もあるじゃないですか。毎日完璧とか無理じゃないですか。
そんな時は潔く諦めて、
洗濯物掛けっぱなしにしています!!!

張り切って言うことかよ!
浴室のように本来の用途の邪魔になることもないので、思う存分放置できます。
これは物干しに限った話ではないのですが、
「自分が頑張れない時」を想定して仮置きできる場所を用意しておくことも、生活するうえでは大事なんじゃないかなと思います。
③アイロン中の一時掛けとしても使える
またリビングの物干しは、アイロン中のワイシャツの一時掛けとしても活用できます!
アイロンをかけたばかりのワイシャツって熱気や湿気ムンムンなので、湿気が取れるまで少し放置したいじゃないですか。
そんな時にリビング物干しが重宝しています!
アイロンを使う方は、アイロンをする場所と物干しをセットで考えておくと使いやすいと思います^^
④冬は加湿機代わりになる
これは冬限定ですが、洗濯物を干している間はリビングが加湿されるので過ごしやすくなります。
加湿器に水を足す回数が減って、ちょいと嬉しいポイントです。
リビング物干しのデメリット
続いて、リビング物干しのデメリットですが、、、
皆さんの脳内にずっと浮かんでいるであろう、アレです。
そう、
生活感がありすぎる
という点です。
リビングの一角に服やタオルが干されるので、生活感皆無を目指している方にはおすすめしません!!!
また、予期せぬ来客が多い方もよく検討したほうが良いと思います。
我が家の場合は、来客がある日は洗濯の時間帯をずらしたり、どうしても洗濯したい場合は浴室に干すので、今のところネックになったことはありません。
しかし、子どもの友達や義両親など「洗濯物をあまり見られたくない人」の予期せぬ訪問がある人にとっては、リビングに干した洗濯物を見られるのはストレスになってしまうと思います。
来客が多い人は、ランドリールームに干したほうが精神衛生上良い気がします…!
-150x150.jpg)
よれよれパンツを見られないようにお気をつけくだせぇ!

よれよれって決めつけんな
まとめ
今回はリビングの天井に物干しを設置した事例と、使い勝手やメリット・デメリットをお伝えしましたが、いかがでしたでしょうか?
乾燥機がある場合はランドリールーム集中型のほうが動線が良いと思いますが、我が家のように「乾燥機無し+室内干し」の場合は、リビング物干しもおすすめですよ^^
この記事がおうち作りの参考になったら嬉しいです^^
ではまた!



